Locais de estacionamento e sinalizações no campus Juazeiro do Norte
Publicado em 18/10/2019. Atualizado em 18/10/2019 às 09h55
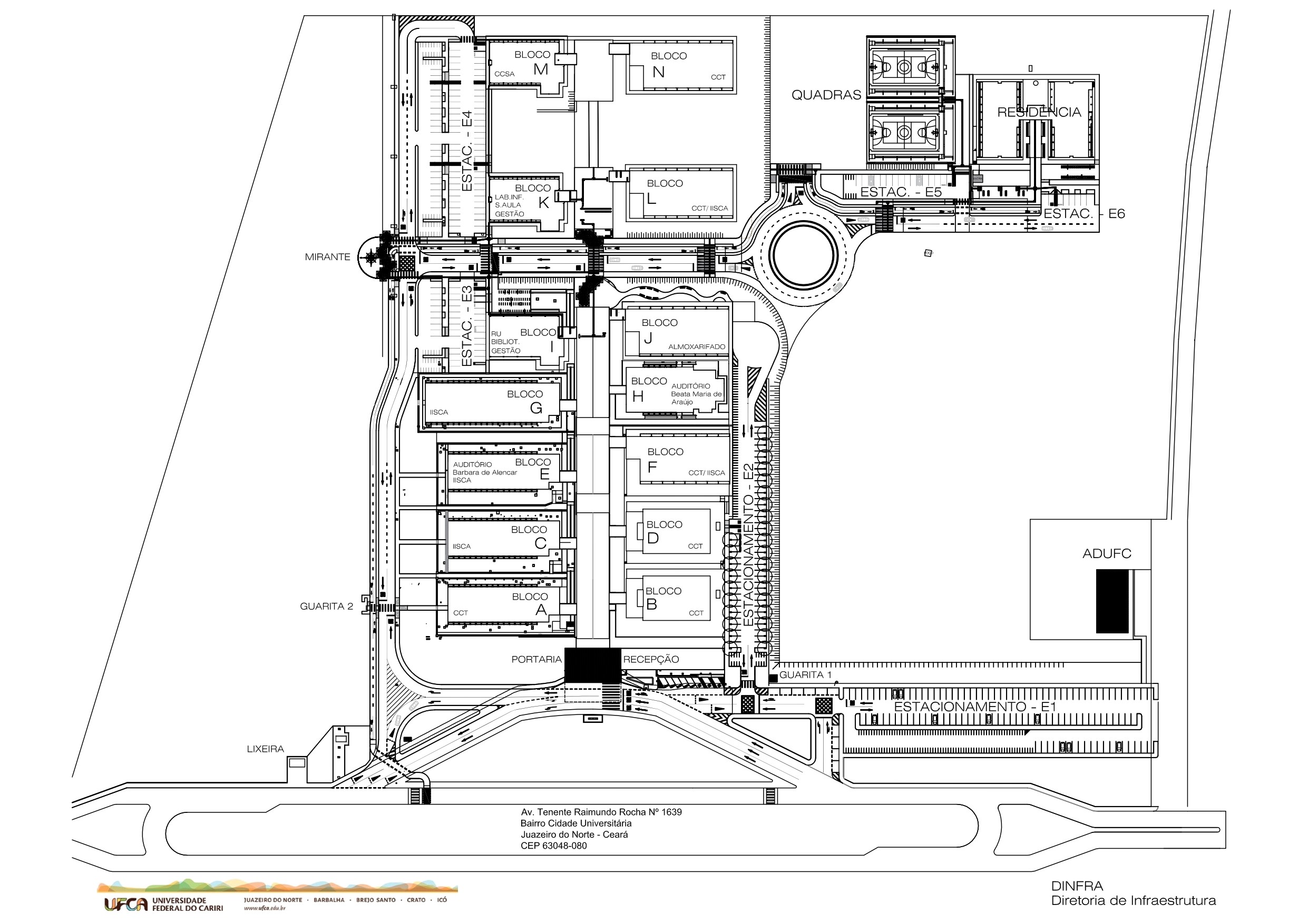
A Diretoria de Infraestrutura da Universidade Federal do Cariri (Dinfra/UFCA) informa que as sinalizações verticais e horizontais das vias e estacionamentos do campus Juazeiro do Norte estão sendo concluídas. Desta forma, a Diretoria solicita atenção quanto aos locais corretos de estacionamento para carros e motos e respeito às vagas prioritárias estabelecidas por lei. O campus Juazeiro do Norte agora possui seis estacionamentos (E1 a E6), não sendo mais necessário estacionar nas vias internas e externas. A Dinfra ressalta ainda a necessidade de atenção para as travessias de pedestres e cruzamentos e para o limite de velocidade (20km/h) dentro do campus. Com a conclusão da sinalização, torna-se possível a autuação de infrações cometidas no interior dos estacionamentos pelos órgãos de fiscalização de trânsito.

Localização dos estacionamentos (E1 a E6)